Grafton Road
London
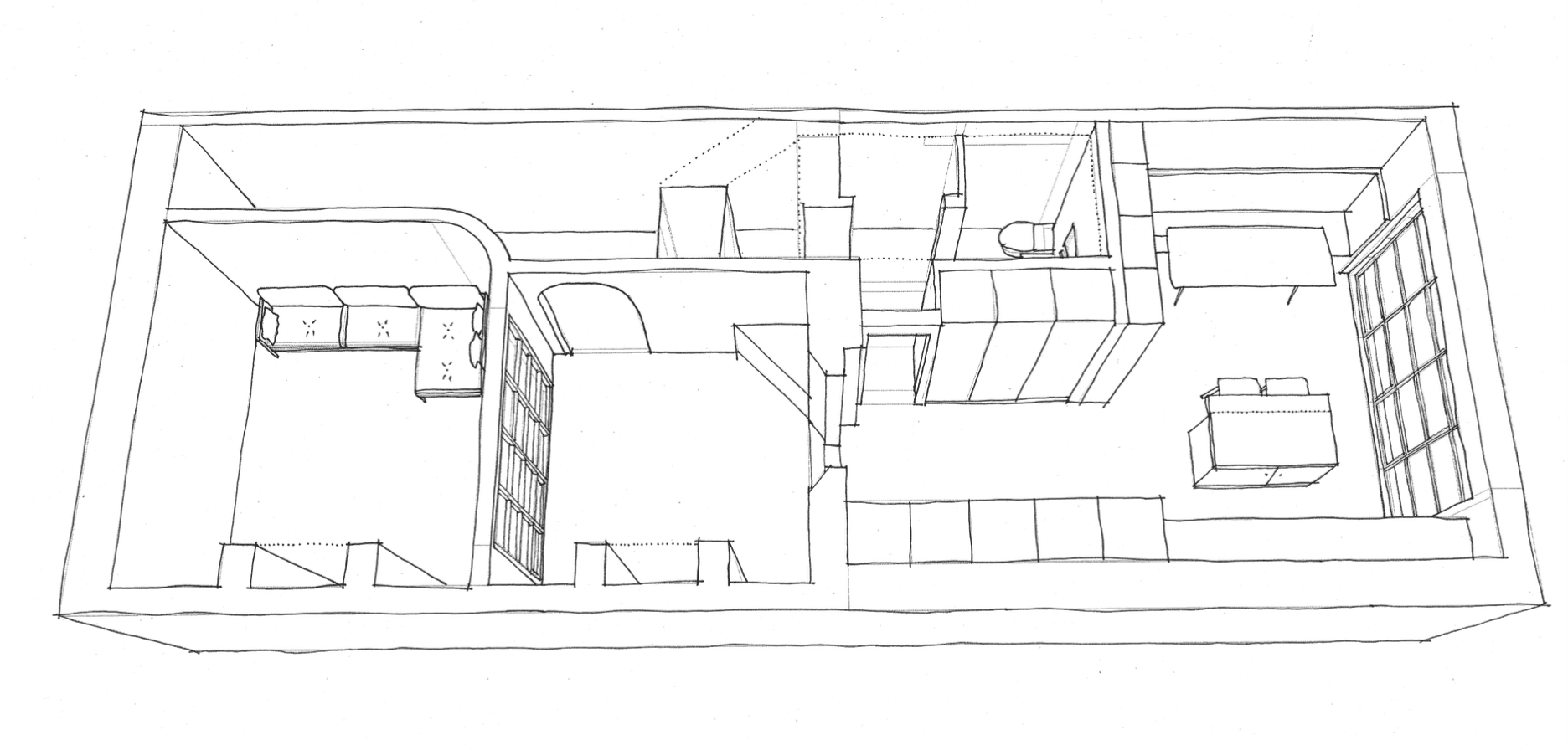
The Grafton Road project is a beautiful grade 2 listed terrace house in London, where I redesigned the ground floor interiors through the medium of hand draw 3D sketches, as requested by the client. Splashes of colour were added, alongside celebrating natural raw materials. The interiors reflected classical English design features, alongside a few colourful artist details.
Grafton Road
London
The Grafton Road project is a beautiful grade 2 listed terrace house in London, where I redesigned the ground floor interiors through the medium of hand draw 3D sketches, as requested by the client. Splashes of colour were added, alongside celebrating natural raw materials. The interiors reflected classical English design features, alongside a few colourful artist details.








