Micro Living - Japanese Flat
London Fields
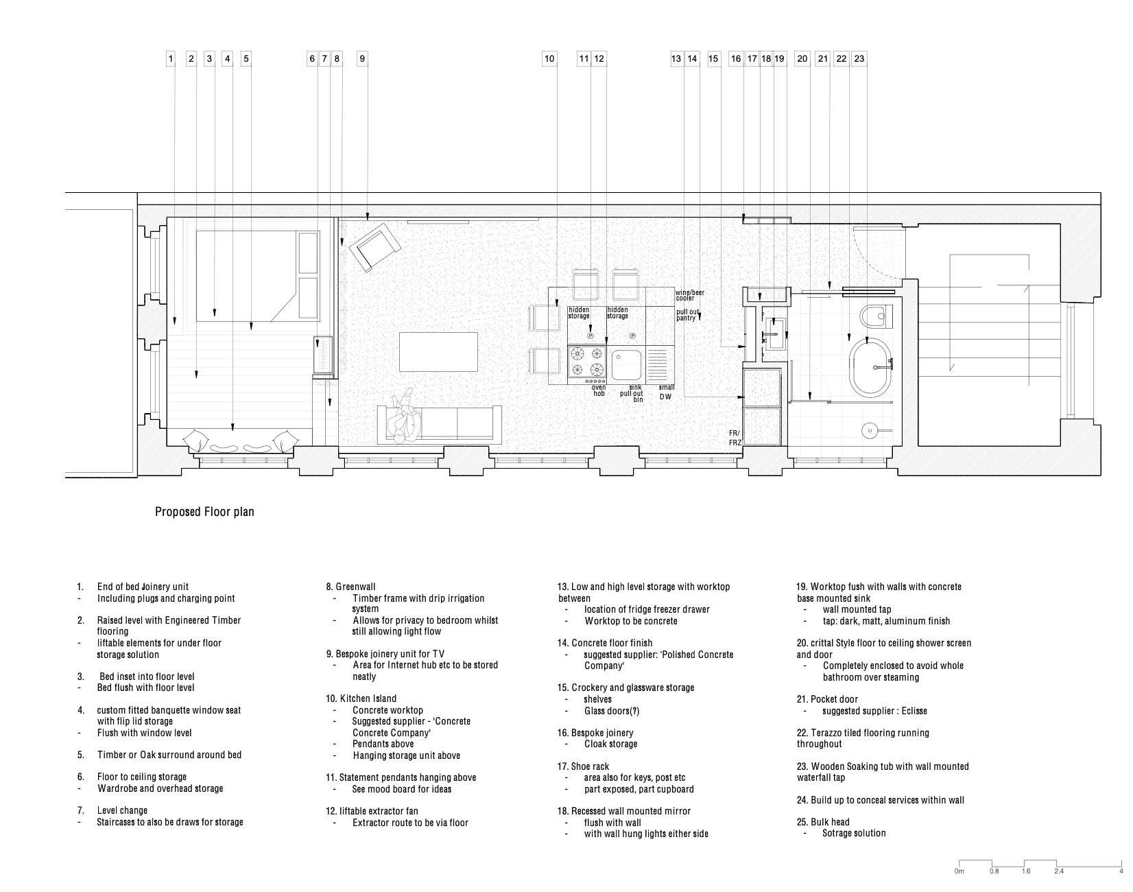
This 60 m² Japanese-inspired micro-living project was a fun challenge, transforming a compact space into a calm and functional home. I led the design from stages 0–4, focusing on natural materials and thoughtful spatial planning.
Polished screed floors and a warm, natural-wood kitchen define the main living area. The bathroom features deep green tiles, a bespoke terrazzo shower seat, and a handcrafted wooden plunge bath. In the micro-bedroom, a stepped floor integrates the bed to maximise storage and efficiency.
Every element was carefully considered to create a space that feels minimal, warm, and perfectly tailored to the client’s needs.
Micro Living - Japanese Flat
London Fields
This 60 m² Japanese-inspired micro-living project was a fun challenge, transforming a compact space into a calm and functional home. I led the design from stages 0–4, focusing on natural materials and thoughtful spatial planning.
Polished screed floors and a warm, natural-wood kitchen define the main living area. The bathroom features deep green tiles, a bespoke terrazzo shower seat, and a handcrafted wooden plunge bath. In the micro-bedroom, a stepped floor integrates the bed to maximise storage and efficiency.
Every element was carefully considered to create a space that feels minimal, warm, and perfectly tailored to the client’s needs.





